- 長野県の不動産情報は長野・松本土地情報館
- 不動産検索
- 長野市
- 長野県長野市大字上駒沢
不動産詳細Property Detail
セールスポイント
上駒沢の閑静な住宅街に分譲地登場!50坪越えの整形地!三才駅まで徒歩約9分!徒歩圏内にスーパーやコンビニ、飲食店あり!
この物件のお支払い例
この物件の支払い例
※上記支払例の借入条件:金利1.075%、
借入総額1,390万円、借入期間40年
※価格は総額を表示しております。消費税が課税される場合は税込価格です。
※別途諸費用がかかります。
土地+新築プラン
お支払い参考例
新築一戸建て建築の目安として
ご参考ください。
頭金0円 / ボーナス払い0円
| プラン |
|
会員になると頭金や返済期間、ボーナス払いを
自由に設定してシミュレーションすることができます!
今すぐ会員登録
土地+新築プラン
お支払い参考例
土地+建物価格
=
万円
※お支払例は上記の借入条件で、金利1.075%、借入総額万円、借入期間40年のお支払い例です。
新築セットプランの建物価格は参考価格です。土地代金と建物価格以外に、契約事務手数料や外構工事を含む付帯工事費用が必要です。
また、土地の条件によっては、建築できない場合や土地の上物解体費用や造成工事に費用がかかる場合があります。予めご了承ください。
※掲載の間取り図は各面積タイプの代表的な例です。他にも多数プランをご用意していますので、お気軽にお問い合わせください。
画像
所在地・交通
| 所在地 |
長野県長野市大字上駒沢
|
| 最寄駅 |
北しなの線 三才 徒歩 約560m 徒歩 約7分 |
| 最寄バス停 |
|
| 小学校校区 |
古里小 |
| 中学校校区 |
東北中 |
※地図上の「ピンマーク」の位置は「町名」もしくは「丁目」がある場合は「丁目」にマッピングされています。
実際の場所ではございません。
物件概要
| 種目 |
売地
|
| 土地面積 |
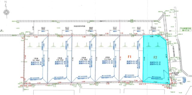
178.42㎡(53.97坪) |
| 私道面積 |
|
| 建ぺい率/容積率 |
60% / 200% |
| 都市計画 |
市街化区域 |
| 接道状況 |
北 6.4m 公道 幅5.3m / 東 17.0m 公道 幅4.0m |
| 間口 |
|
| 奥行 |
|
| 地目 |
宅地 |
| 土地権利 |
所有権 |
| 地勢 |
平坦 |
| 用途地域 |
第一種住居地域 |
| 現況 |
更地 |
| 条件等 |
建築条件付 |
| 取引態様 |
売主 |
| 種目 |
売地 |
| 間取り |
|
| 間取り内訳 |
|
| 土地面積 |
178.42㎡(53.97坪) |
| 私道面積 |
|
| 建物面積 |
|
| 建物構造規模 |
|
| 築年月(竣工月) |
|
| 駐車場有無 |
|
| 建ぺい率/容積率 |
60% / 200% |
| 都市計画 |
市街化区域 |
| 接道状況 |
北 6.4m 公道 幅5.3m / 東 17.0m 公道 幅4.0m |
| 地目 |
宅地 |
| 土地権利 |
所有権 |
| 地勢 |
平坦 |
| 用途地域 |
第一種住居地域 |
| 現況 |
更地 |
| 取引態様 |
売主 |
| 種目 |
売地 |
| 間取り |
|
| 間取り内訳 |
|
| 土地面積 |
178.42㎡(53.97坪) |
| 私道面積 |
|
| 建物面積 |
|
| 建物構造規模 |
|
| 築年月(竣工月) |
|
| 駐車場有無 |
|
| 建ぺい率/容積率 |
60% / 200% |
| 都市計画 |
市街化区域 |
| 接道状況 |
北 6.4m 公道 幅5.3m / 東 17.0m 公道 幅4.0m |
| 地目 |
宅地 |
| 土地権利 |
所有権 |
| 地勢 |
平坦 |
| 用途地域 |
第一種住居地域 |
| 現況 |
更地 |
| 取引態様 |
売主 |
| 種目 |
売地 |
| 間取り |
|
| 間取り内訳 |
|
| 専有面積 |
|
| 建物構造 |
|
| バルコニー面積 |
|
| 向き |
|
| 階数 |
|
| 所在階 |
|
| 築年月(竣工月) |
|
| 駐車場有無 |
|
| 駐車場料金 |
|
| 駐車場備考 |
|
| 総戸数 |
戸 |
| 管理費 |
|
| 積立金 |
|
| 土地権利 |
所有権 |
| 管理形態/方式 |
|
| 用途地域 |
第一種住居地域 |
| 現況 |
更地 |
| 取引態様 |
売主 |
取引条件等
その他
| 設備 |
プロパンガス |
| 特徴 |
|
| 諸条件・相談 |
|
| 備考 |
※APHグループ建築条件付き |
| 情報登録日 |
2026年4月25日 |
| 情報更新予定日 |
2026年5月16日 |
| 物件番号 |
42263 |
この不動産に似た不動産を
ピックアップしました!