- 長野県の不動産情報は長野・松本土地情報館
- 不動産検索
- 長野市
- 長野県長野市安茂里小市一丁目
不動産詳細Property Detail
新築一戸建て建築中
JUST PIA HOUSE 安茂里小市一丁目A3
セールスポイント
ZEH水準省エネ住宅!地震に強く、高気密・高断熱構造で安心・快適な生活を送れます!オール電化+太陽光5.46kw搭載でお財布に優しい生活を!建築中もご内覧いただけますので、お気軽にお問合せ下さい!
この物件のお支払い例
この物件の支払い例
※上記支払例の借入条件:金利1.075%、
借入総額3,580万円、借入期間40年
※価格は総額を表示しております。消費税が課税される場合は税込価格です。
※別途諸費用がかかります。
画像
所在地・交通
| 所在地 |
長野県長野市安茂里小市一丁目
|
| 最寄駅 |
JR信越本線(篠ノ井~長野) 安茂里 徒歩 約880m 徒歩 約11分 |
| 最寄バス停 |
|
| 小学校校区 |
松ケ丘小 |
| 中学校校区 |
裾花中 |
※地図上の「ピンマーク」の位置は「町名」もしくは「丁目」がある場合は「丁目」にマッピングされています。
実際の場所ではございません。
物件概要
| 種目 |
新築一戸建て
|
| 土地面積 |
214.84㎡(64.98坪) |
| 私道面積 |
|
| 建ぺい率/容積率 |
60% / 200% |
| 都市計画 |
市街化区域 |
| 接道状況 |
西 5.1m 幅3.7m |
| 間口 |
|
| 奥行 |
|
| 地目 |
宅地 |
| 土地権利 |
所有権 |
| 地勢 |
平坦 |
| 用途地域 |
第一種住居 |
| 現況 |
建築中 |
| 条件等 |
|
| 取引態様 |
売主 |
| 種目 |
新築一戸建て |
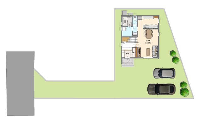
| 間取り |
3LDK |
| 間取り内訳 |
LDK16.3畳(1階) 洋室7.0畳(2階) 洋室5.5畳(2階) 洋室5.5畳(2階) |
| 土地面積 |
214.84㎡(64.98坪) |
| 私道面積 |
|
| 建物面積 |
92.74㎡(28.05坪) |
| 建物構造規模 |
木造 |
| 築年月(竣工月) |
2026年7月 |
| 駐車場有無 |
|
| 建ぺい率/容積率 |
60% / 200% |
| 都市計画 |
市街化区域 |
| 接道状況 |
西 5.1m 幅3.7m |
| 地目 |
宅地 |
| 土地権利 |
所有権 |
| 地勢 |
平坦 |
| 用途地域 |
第一種住居 |
| 現況 |
建築中 |
| 取引態様 |
売主 |
| 種目 |
新築一戸建て |
| 間取り |
3LDK |
| 間取り内訳 |
LDK16.3畳(1階) 洋室7.0畳(2階) 洋室5.5畳(2階) 洋室5.5畳(2階) |
| 土地面積 |
214.84㎡(64.98坪) |
| 私道面積 |
|
| 建物面積 |
92.74㎡(28.05坪) |
| 建物構造規模 |
木造 |
| 築年月(竣工月) |
2026年7月 |
| 駐車場有無 |
|
| 建ぺい率/容積率 |
60% / 200% |
| 都市計画 |
市街化区域 |
| 接道状況 |
西 5.1m 幅3.7m |
| 地目 |
宅地 |
| 土地権利 |
所有権 |
| 地勢 |
平坦 |
| 用途地域 |
第一種住居 |
| 現況 |
建築中 |
| 取引態様 |
売主 |
| 種目 |
新築一戸建て |
| 間取り |
3LDK |
| 間取り内訳 |
LDK16.3畳(1階) 洋室7.0畳(2階) 洋室5.5畳(2階) 洋室5.5畳(2階) |
| 専有面積 |
|
| 建物構造 |
木造 |
| バルコニー面積 |
|
| 向き |
|
| 階数 |
|
| 所在階 |
|
| 築年月(竣工月) |
2026年7月 |
| 駐車場有無 |
|
| 駐車場料金 |
|
| 駐車場備考 |
|
| 総戸数 |
戸 |
| 管理費 |
|
| 積立金 |
|
| 土地権利 |
所有権 |
| 管理形態/方式 |
|
| 用途地域 |
第一種住居 |
| 現況 |
建築中 |
| 取引態様 |
売主 |
取引条件等
その他
| 設備 |
温水洗浄便座、トイレ2ヶ所、追焚機能、浴室乾燥機、システムキッチン、カウンターキッチン、IHクッキングヒーター、浄水器、食器洗浄乾燥機、ウォークインクローゼット、室内洗濯機置場、洗髪洗面化粧台、照明器具、複層ガラス、エアコン、モニタ付インターホン、駐車場2台分 |
| 特徴 |
日当り良好、オール電化、24時間換気システム、住宅性能保証付 |
| 諸条件・相談 |
|
| 備考 |
※敷地内に電柱と支柱あり |
| 情報登録日 |
2026年4月6日 |
| 情報更新予定日 |
2026年4月13日 |
| 物件番号 |
40501 |
この不動産に似た不動産を
ピックアップしました!